新聞中心
News Center
三相不平衡調節裝置標準
2021-12-10
標準三相不平衡調節裝置。
當前,在國家電網公司低壓配電網絡中,存在著大量的單相、非對稱、非線性、激波負荷,三相負荷系統隨機變化,在配電網中,往往會造成三相不平衡,三相負荷的不平衡將導致供電系統三相電壓、電流不平衡,從而造成電網負序電壓和負序電流。
對供電質量造成影響,造成線損,降低供電可靠性。

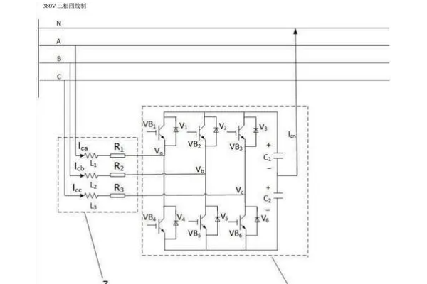
三相不平衡治療儀是一種專為上述問題開發的產品,有別于傳統的治療儀,它融合了半導體器件和接觸式開關的優點,可以避免負荷投切時接觸器開關產生的較大涌流和開放、斷開時間間隔長等問題,使負載用戶在負載換相投切過程中可以正常供電;也可以避免半導體器件長期運行帶來的發熱問題。
配電網絡三相不平衡治理裝置的應用,極大地提高了配電系統的穩定性和智能化水平,可以為電力系統建設堅強智能電網提供良好的支持。
三相不平衡調整裝置主要由主控制器和換相開關組成。
主控機是整個設備的控制核心,換相器是設備的執行機構,它們之間通過GPRS無線通信,互相協作,共同完成三相不平衡問題的治理。

主控器作為整個設備的控制終端,每臺設備只有一臺主控。
該系統負責采集整個設備的各種狀態信息和數據,并通過邏輯運算來完成各種指令的操作。
該系統探測配網總線的電壓信號,接收換相開關上載的負荷電流數據,計算負荷均衡度和分配情況,通過分析計算向各換相器發送一條換相器指令;接收換相器上載的運行狀態和故障信息,并作出相應的控制操作。
換相器是設備的分支和執行機構,根據配變容量和負荷的分布情況,可以靈活選擇換相開關的容量和數量。
該系統負責采集負荷電流數據,與其自身狀態信息一起通過GPRS無線通信傳給主控制器;接收主控制器的換相指令進行換相操作;接收主控制器的故障保護命令進行相應的操作;顯示自身的運行狀態信息。

每一臺三相不平衡調節裝置只有一臺主控器,但是其換相開關的數目是不固定的,根據現場應用情況,可配置多種類型的換相器。
在換相器和主控器之間通過GPRS無線通信實現信息交互,使現場應用安裝靈活。
現場使用的三相不平衡調節裝置較為復雜、多樣,本文不一一列舉,下面主要介紹主控制器和換相器的技術方案及具體實現。